Banesë me qira
300.00 €
- , Rruga A-Rruga C, Prishtinë
Publikuar me 19.06.2023
Banese me qira Rruga A
Green Park
Mund Te Mobilohet Qmimi
Me Mobilie eshte 350 €
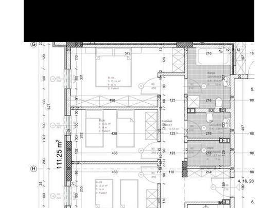
Posedon :
- Sallon & Kuzhin
- 3 Dhoma Gjumi
- 2 Banjo
- Ballkon
Çmimi: 300 €
Kodi i shpalljes: 4761
Max ©
Për tjera zgjedhje dhe info
Kontakt: +38348311116 (viber&whatsapp)
Instagram&Facebook: @agjencionimax
www.agjencionimax.com
